Local D’Activite • 1472 m²

Disponibilité : Février 2025
HORBOURG WIHR
Référence : 68_0587

Votre contact : 

Patrick
MOUGIN

Vous voulez en savoir plus sur ce bien ?

Détails du bien

Description

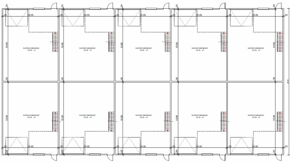
Au sein d’un site entièrement clôturé bâptisé Les Jardins de Diane II, un bâtiment neuf d’une surface totale d’environ 1 472,5 m² composé de 10 Lots d’activité d’environ 147.25 m² chacun (127.25 m² en RDC, 20 m² l’étage – open space, sanitaires et kitchenette), livrés en clos couvert et fluides en attentes.

2 places de parking privées par cellule avec possibilité de bornes de recharge électrique.

Régime fiscal : TVA
Charges : 14720 €
Les charges comprennent la Taxe foncière, l’eau, l’entretien des espaces verts.
Honoraires: 15% HT + TVA du montant du loyer annuel HTHC à la charge du preneur

Localisation

Galerie photos

Nos biens similaires